
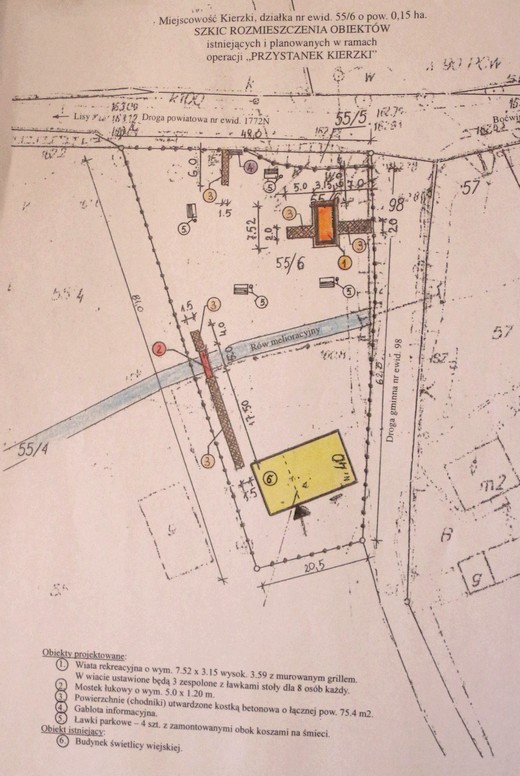
KIERZKI. „Przystanek Kierzki" to tytuł projektu, jaki jest obecnie realizowany w gminie Banie Mazurskie. Jego wartość to prawie 53 tysiące złotych, z czego ponad 30 tysięcy to środki zewnętrzne. W ramach projektu zagospodarowany zostanie teren przy świetlicy wiejskiej w Kierzkach.
Powstaje wiata rekreacyjna o wymiarach 7,5x3 metry, w której stanie murowany grill. Ustawione w niej będą 3 stoły zespolone z ławkami, przeznaczone dla 8 osób każdy. Do wiaty będzie prowadzić od drogi chodnik z betonowej kostki. Nad rowem melioracyjnym powstanie pięciometrowej długości łukowy mostek. Na działce ustawione zostaną 4 ławki wraz z zamontowanymi obok koszami na śmieci. Przy głównej drodze we wsi ustawiona zostanie gablota ogłoszeniowa.
Zakończenie robót planowanie jest w połowie marca. Trzeba zauważyć, że termin realizacji inwestycji – środek zimy - jest nieco zaskakujący. Wójt Łukasz Kuliś uzasadnia to jednak wymaganiami programu, z którego uzyskano dotację. Taki termin realizacji był jednym z jego warunków.



Kilkanaście minut trwała dyskusja podczas ubiegłotygodniowej sesji Rady Gminy Banie Mazurskie, dotycząca poparcia dla inicjatywy odbudowy i rewitalizacji ciągu kolejowego Gołdap - Węgorzewo - Kętrzyn - Reszel. Ostatecznie radni poparli pomysł.
Zarząd województwa rozstrzygnął konkurs na realizację zadań publicznych na rzecz mniejszości narodowych i etnicznych. Wsparcie otrzyma m.in. Związek Ukraińców w Polsce koło w Baniach Mazurskich na organizację XV Barw Kultury Ukraińskiej.
Astronomiczna wiosna zbliża się dużymi krokami. Kolejny jej zwiastun już jest. Bocian Kajtek wrócił do swojego domu.
Uczniowie ze Szkoły Podstawowej w Lisach wzięli udział w zajęciach pt. "Zima to trudny czas dla dziko żyjących zwierząt i ptaków".
Dzieci uczęszczające do Publicznego Przedszkola Samorządowego w Baniach Mazurskich oraz Szkoły Podstawowej im. Wojciecha Kętrzyńskiego w Baniach Mazurskich będą miały przedłużone ferie.
19 stycznia w Gminnej Bibliotece Publicznej w Baniach Mazurskich odbył się warsztat tworzenia magnesów.
W ramach realizacji programu MEN "Wyjście z klasą", uczniowie Szkoły Podstawowej w Lisach wybrali się na wycieczkę do Białegostoku.
Za nami pierwsza w tym roku akcja krwiodawcza w Baniach Mazurskich, która przyniosła wyjątkowo piękne rezultaty. Do oddania krwi zgłosiło się 26 osób, a po badaniach lekarskich zakwalifikowano 23 dawców.
21 stycznia w sali konferencyjnej Banku Spółdzielczego w Baniach Mazurskich odbędzie się pierwsza w tym roku akcja krwiodawcza, organizowana przez OSP w Surminach.
7 listopada w Gminnej Bibliotece Publicznej w Baniach Mazurskich odbyło się w spotkanie autorskie z Krzysztofem Stachowskim.